Quadrilocale in vendita

Caserta, Via Giovanni Patturelli - Caserta Centro
€ 230.000
Prezzo aggiornato
4 locali 4 locali
134 Mq 134 Mq
2 bagni 2 bagni

Quadrilocale in vendita

Caserta, Via Giovanni Patturelli - Caserta Centro

Descrizione annuncio

Se state cercando una soluzione abitativa nel cuore pulsante di Caserta, non perdete l’occasione di scoprire questo ampio immobile in via Patturelli!

Situato a pochi passi dai servizi essenziali come le Poste Italiane, il Liceo Scientifico Diaz, la Ragioneria e il supermercato Conad, questo appartamento offre una pratica e comoda vita cittadina.

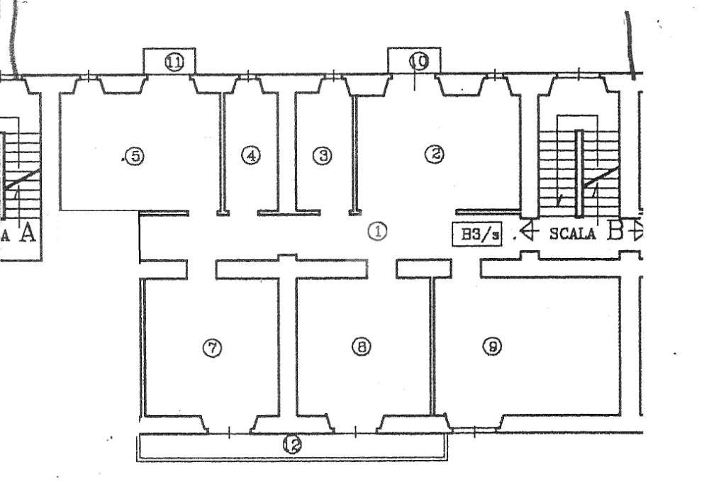
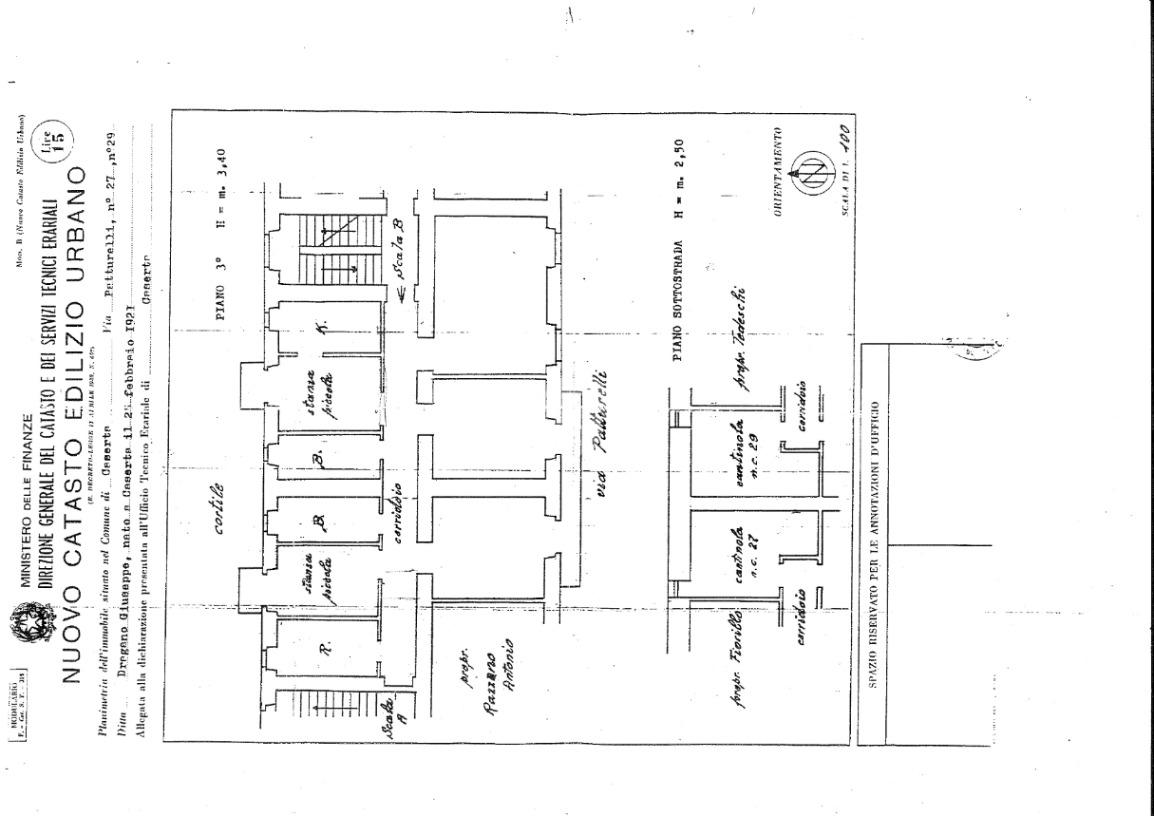
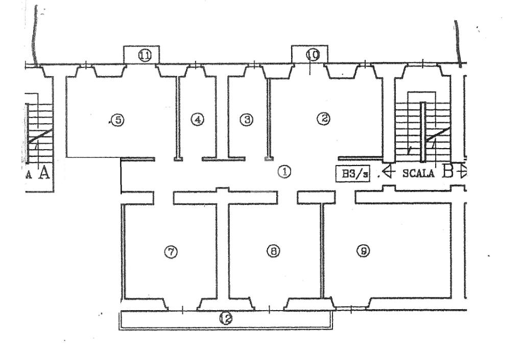
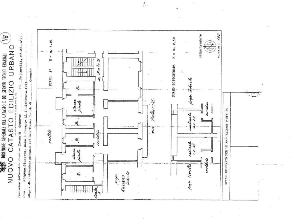
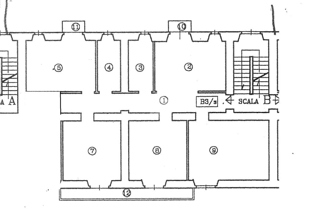
Ubicato al terzo e ultimo piano (senza ascensore), l’immobile si estende su circa 134 mq, rivelandosi perfetto per le famiglie o per chi desidera investire in due bilocali indipendenti. Con due ingressi autonomi, avrete la possibilità di personalizzare gli spazi secondo le vostre esigenze. Al suo interno, troverete un ampio salone ideale per momenti di convivialità, una cucina abitabile, tre spaziose camere da letto, un ripostiglio e due bagni, assicurando così comfort e praticità in ogni momento della giornata.

Questo appartamento si presenta in ottimo stato, pronto per essere abitato senza alcun pensiero. Non solo gli interni sono stati mantenuti con cura, dotato di un impianto di riscaldamento autonomo e di doppi infissi, mentre il pavimento uniforme in gres porcellanato conferisce un tocco di eleganza agli ambienti. La doppia esposizione garantisce una luminosità straordinaria , con vista panoramica sul borgo di Caserta Vecchia. Inoltre, si precisa che, i lavori per il rifacimento dei cornicioni esterni e dei frontalini sono già stati approvati, deliberati e pagati.

In aggiunta, l'immobile dispone di due cantinole di circa 11 mq ciascuna, perfette per riporre oggetti e creare ulteriore spazio. Anche se non è presente un posto auto privato, non ci sono problemi: grazie ai permessi per residenti, si potrà facilmente parcheggiare in strada. Inoltre, a soli 200 metri troverete comodi parcheggi privati.

Non perdete l’opportunità di visitare questa fantastica proposta: l’immobile è disponibile per la visione tutti i giorni, previa telefonata per fissare un appuntamento.

Mostra tutto

Nelle vicinanze

Trasporto pubblico Trasporto pubblico
stazione di Caserta
stazione di Caserta
1,1 Km
Fermata CLP Stadio
Fermata CLP Stadio
490 m
Caserta
Caserta
1,1 Km
Ricariche auto elettriche Ricariche auto elettriche
Caserta Laviano | EnelX
530 m
Caserta Piazza Carlo Cattaneo | EnelX
680 m
Stazione di Caserta | Enelx
960 m
Caserta Ferrarecce | EnelX
1,0 Km
Caserta Acquaviva | EnelX
1,1 Km
Scuole Scuole
Liceo Scientifico Armando Diaz
80 m
ITE "Terra di Lavoro"
200 m
Suore Riparatrici del Sacro Cuore
330 m
Liceo Statale "Alessandro Manzoni Caserta"
460 m
I.S.I.S. "Enrico Mattei"
470 m
Farmacia Farmacia
Farmacia
680 m
Farmacia Odierna
1,3 Km
Farmacia Fugaro
1,3 Km
Barca
1,8 Km
Farmacia San Michele
2,5 Km
Ospedali Ospedali
Ospedali
1,3 Km
Pronto Soccorso Ospedale "Sant'Anna e San Sebastiano"
1,3 Km
Ospedale di Caserta - LATO NUOVO
1,4 Km
Ospedale COVID-19 Caserta
1,4 Km
Azienda Ospedaliera di Caserta Sant'Anna e San Sebastiano
1,4 Km
Supermercati Supermercati
Supermercati
810 m
Deco
820 m
Lidl
1,2 Km
Supermercato G.Politico
1,2 Km
Supermercato Insieme Crisci Alimentari
1,3 Km
Negozi Negozi
I'M boutique Donna
410 m
I'M Boutique Uomo
430 m
NewHope Store
470 m
Negozi
900 m
Il forno
1,1 Km
Bar Bar
Coffea
240 m
Red Eye
650 m
Gran Caffè Margherita
650 m
Serao
710 m
Antica Caffetteria La Reggia
750 m
Ristoranti Ristoranti
La loggetta
260 m
Chips King
330 m
Dolci&Fornelli Mungiguerra
510 m
Ristoranti
680 m
Le tre farine
810 m
Mostra tutto

Caratteristiche

Rif.:
61161997
Piano:
3 di 3 (ultimo Piano)
Balconi:
3
Camere da letto:
3
Arredamento:
Assente
Condizionamento:
Assente
Mostra tutto
Prezzo Prezzo
€ 230.000
Rata mutuo Rata mutuo
€ 1.092 / mese
Spese annue Spese annue
€ 540
Proponi il tuo prezzoProponi il tuo prezzo
Immobile valutato con T·Valuta

Classe Energetica

F
F
F
F
F
F
F
F
F
EP globale non rinnovabile:
45.75 kW h/m² anno
EP globale rinnovabile:
72.05 kW h/m² anno
EP invernale del fabbricato:
EP estiva del fabbricato:
Anno di costruzione:
1950
Riscaldamento:
Autonomo
Tipo impianto:
A radiatori
Tipo alimentazione:
Metano

Prezzo ridotto di €1 (7%%)

Ti interessa visionare l'immobile?

Fissa un appuntamento  Fissa un appuntamento

Richiedi informazioni

Clicca su Leggi per aprire l'informativa
* Questi campi sono obbligatori

Calcola il tuo mutuo

Semplice e senza impegno
Anticipo

( % )
Mutuo

( % )

pochi semplici passi

inserisci i tuoi dati
Questionario completato
Grazie per aver richiesto un appuntamento senza impegno con un nostro Consulente del Credito e Assicurativo.

Hai inserito correttamente tutti i dati necessari e a breve riceverai una e-mail con un link da convalidare per inviare i tuoi dati.
Affiliato
Studio Caserta Centro D.I.
Via Crispo, 21 81100 Caserta (CE)

Il nostro staff


  • Mario Palermo
    Affiliato

  • Annagrazia Guidone
    Coordinatrice
Via Crispo, 21 81100 Caserta (CE)
Zona: Centro Caserta
Mostra su mappa
Orari: DAL LUNEDI AL VENERDI 09:00-13:00 / 16:00-20:00 IL SABATO 09:00-13:00
Affiliato
Studio Caserta Centro D.I.
Via Crispo, 21 81100 Caserta (CE)

2026 Tecnocasa Franchising S.p.A. - P. IVA 08365160152 - Via Monte Bianco 60/A 20089 Rozzano (MI). Ogni agenzia ha un proprio titolare ed è autonoma. Privacy policy | Policy utilizzo | Cookie policy